요약
1. 개정 전 17인승 -> 개정 후 15인승
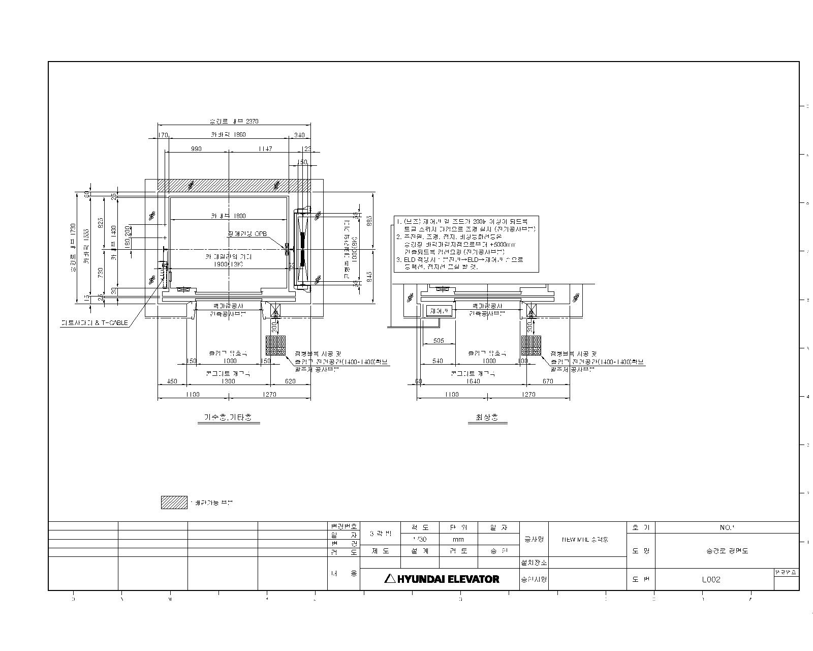
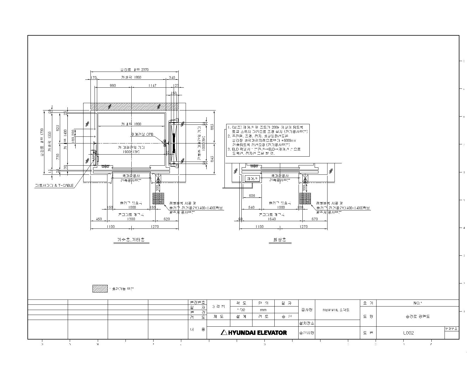
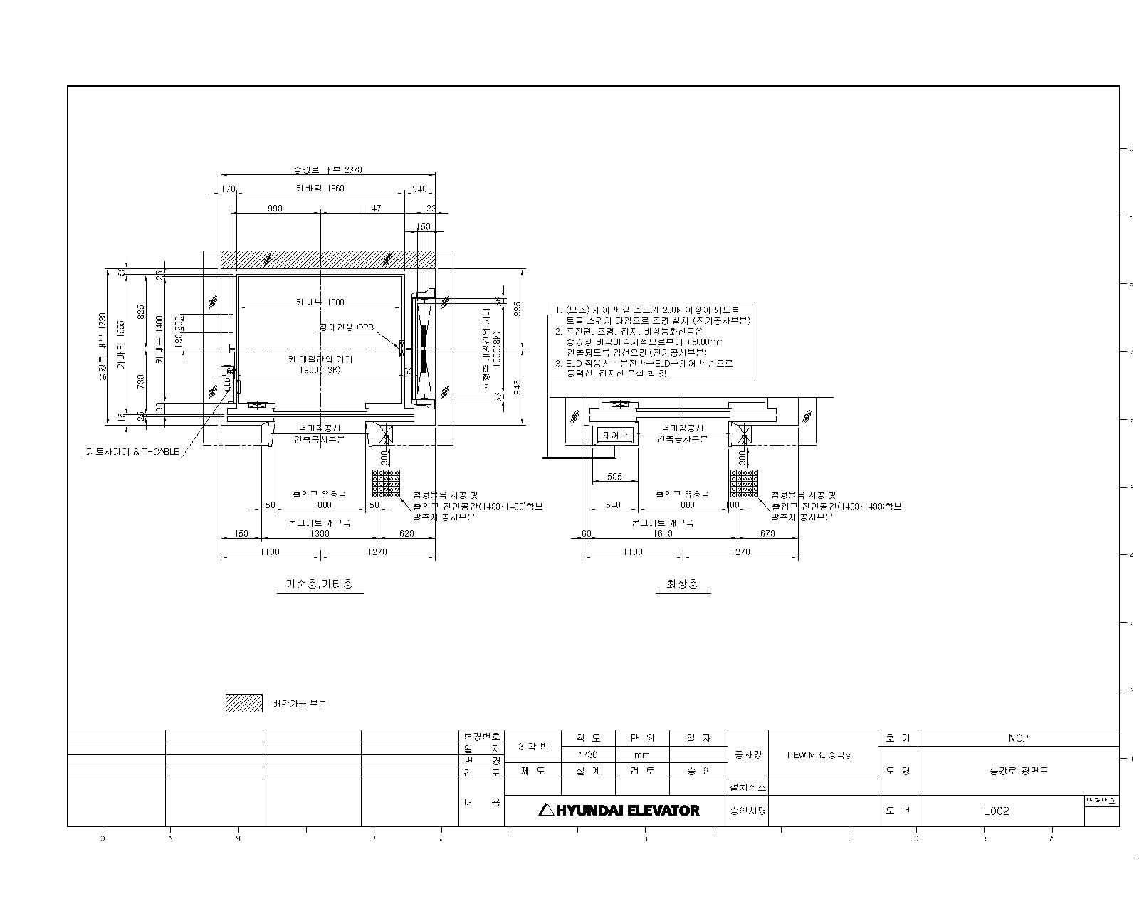
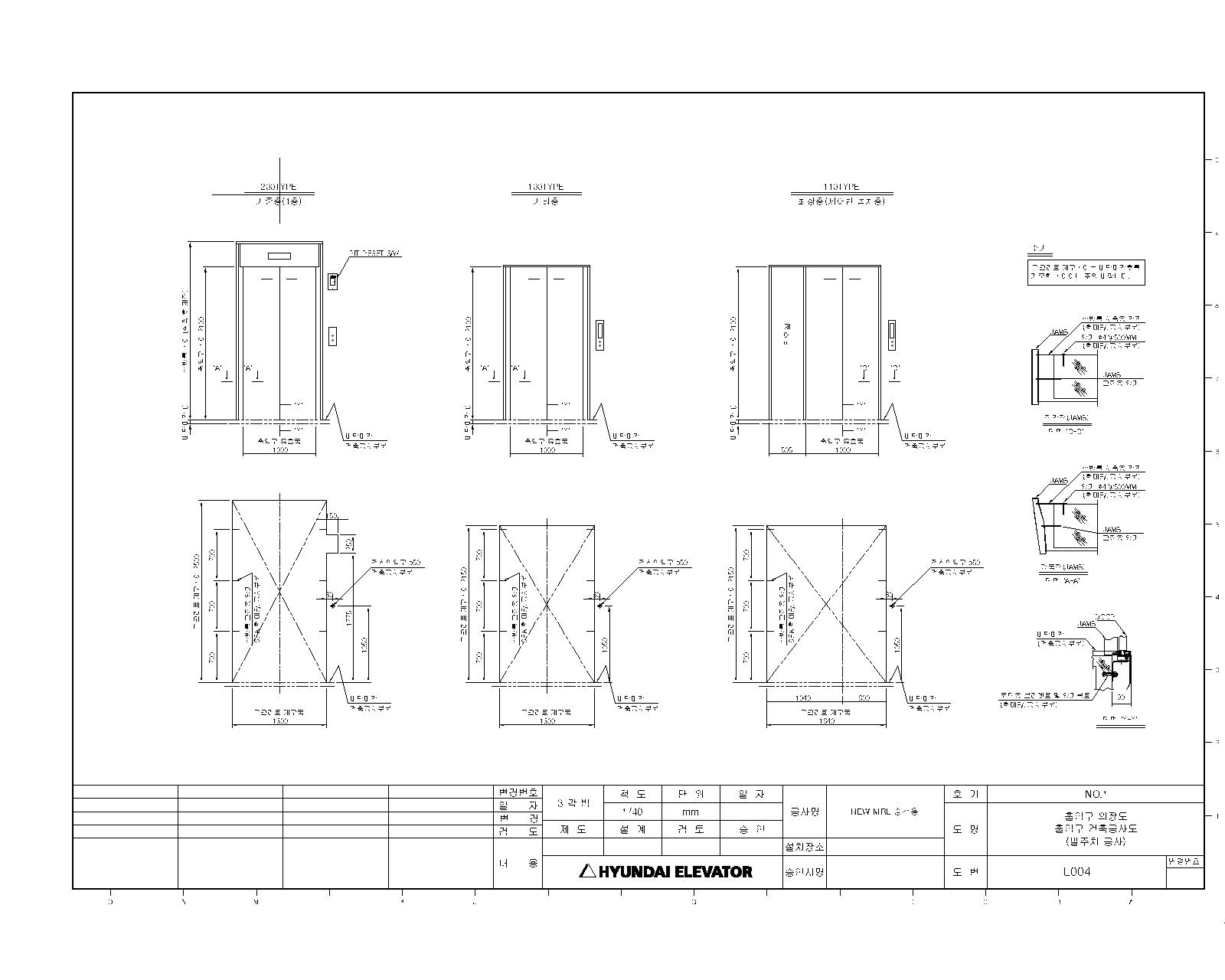
2. 승강로 내부 최소 치수
a) 중저속 제어반 내부일 때 = 2,370 x 1,930
b) 중저속 제어반 외부일 때 = 2,370 x 1,730
c) 고속일 때 = 2,550 x 2,150
3. 승강기 문
a) 최소 폭 = 1,000 x 2,100 (H=바닥 마감 기준)
b) 상방틀 최소 폭 = 1,300 x 2,150 (H=바닥 마감 기준)
c) 제아반 포함 최소 폭 = 1,640 x 2,150 (H=바닥 마감 기준)
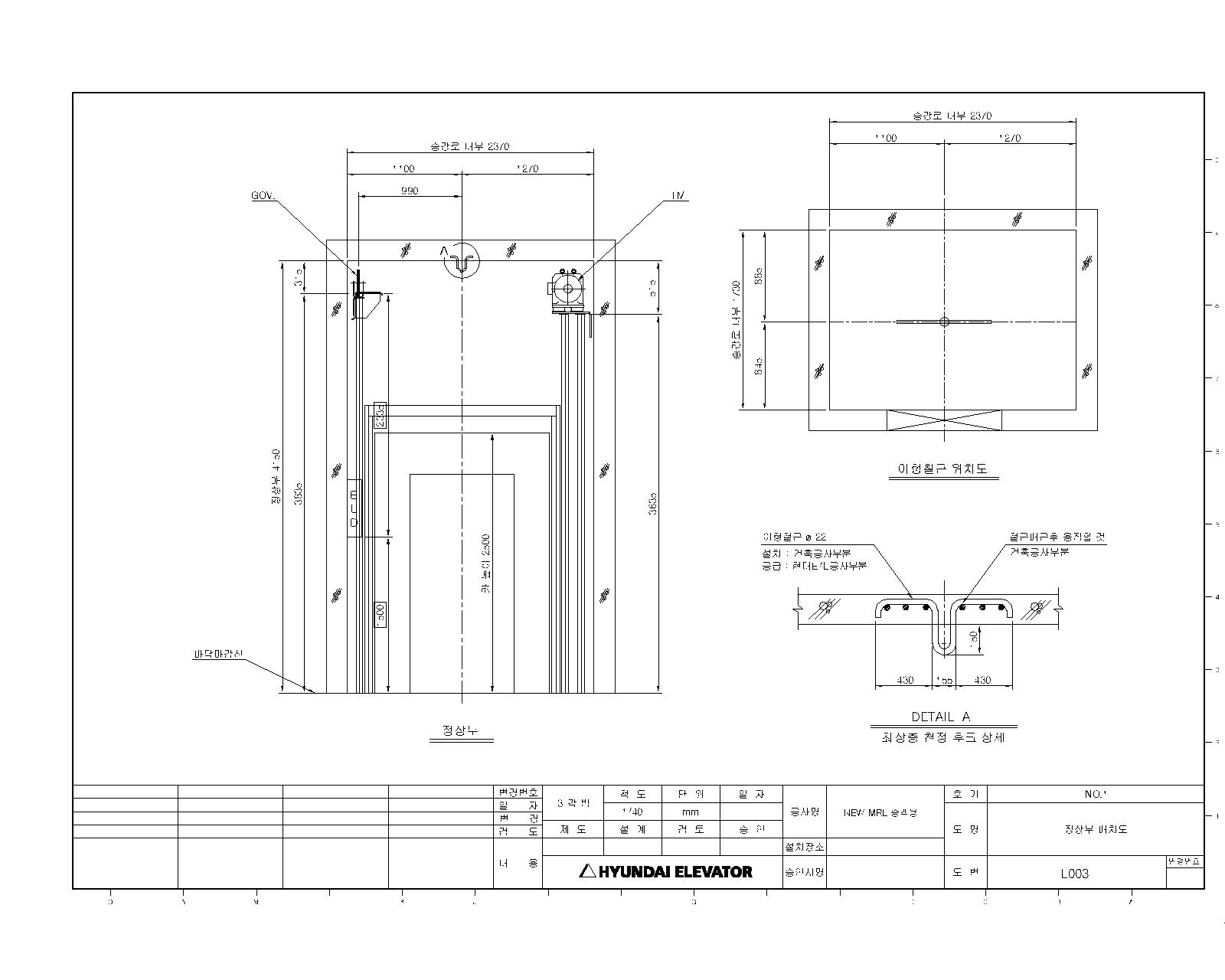
4. 승강기 오버헤드 내부 치수 (소방구조용 포함)
: 속도에 따라 다름, 소방구조용일 경우 일반 승객용 보다 +350mm
= 3,800 ~ 5,000 (H=최상층 바닥 마감 기준)
5. 승강기 PIT 내부 치수 (속도에 따라 다름)
= 1,100 ~ 2,200 (H=최하층 바닥 마감에서 PIT 바닥 마감 까지)
티센크루프 엘리베이터 콘크리트 구조 2인승 치수 바로가기
현대 엘리베이터 콘크리트 구조 7인승 치수_개정후(19.10.22) 바로가기
현대 엘리베이터 콘크리트 구조 12인승(장애인용)_개정후(19.10.22) 치수 바로가기
현대 엘리베이터 콘크리트 구조 13인승(장애인용)_개정후(19.10.22) 치수 바로가기
현대 엘리베이터 장애인용 ELEV. 비교표_개정후(19.10.22) 바로가기





| 2022 학술연구용역인건비 기준단가 (0) | 2022.01.26 |
|---|---|
| 2020년도 국가화재안전기준 해설서(2021년 발행) (0) | 2021.07.19 |
| 현대 엘리베이터 장애인용 ELEV. 비교표_개정후(19.10.22) (0) | 2021.05.14 |
| 창호 에너지 효율 등급 기준표 (0) | 2021.01.19 |
| 2021 학술연구용역인건비 기준단가 (0) | 2021.01.07 |