요약
1. 개정 전 8인승 -> 개정 후 7인승
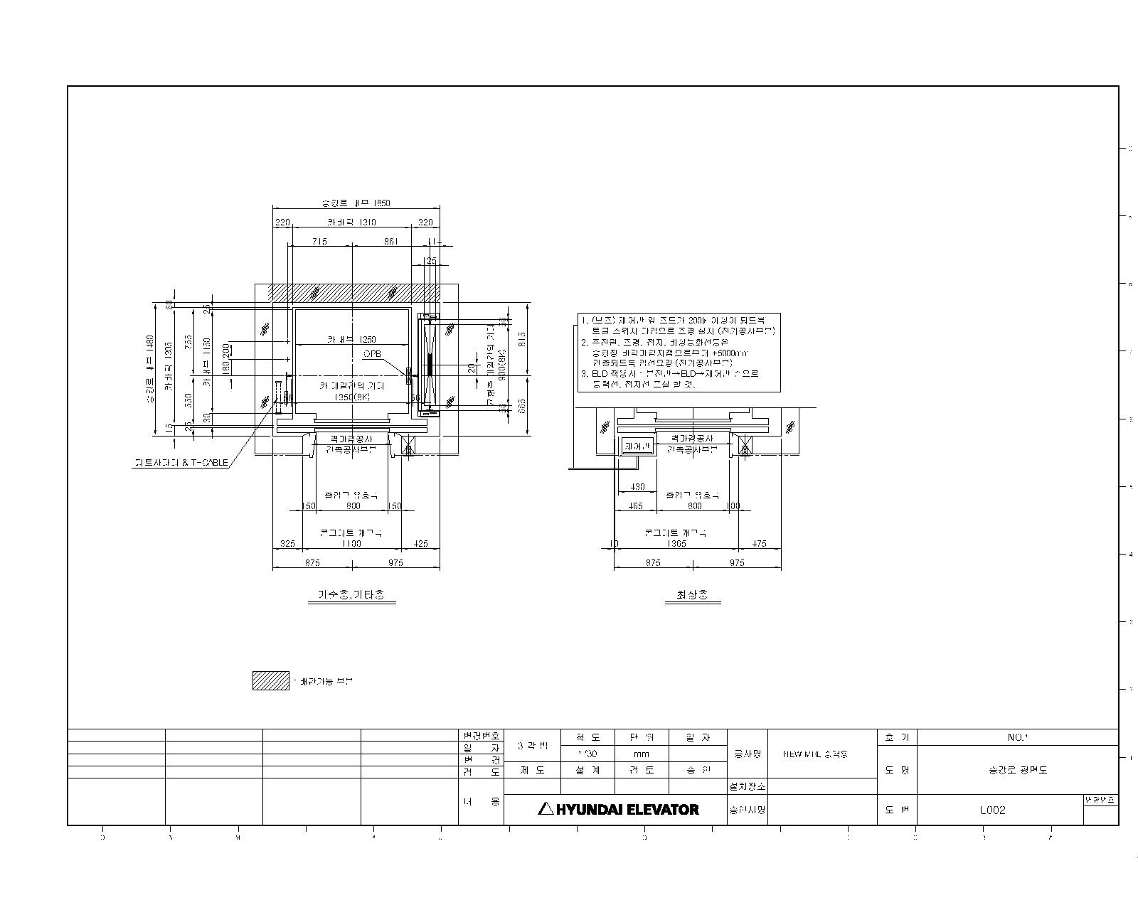
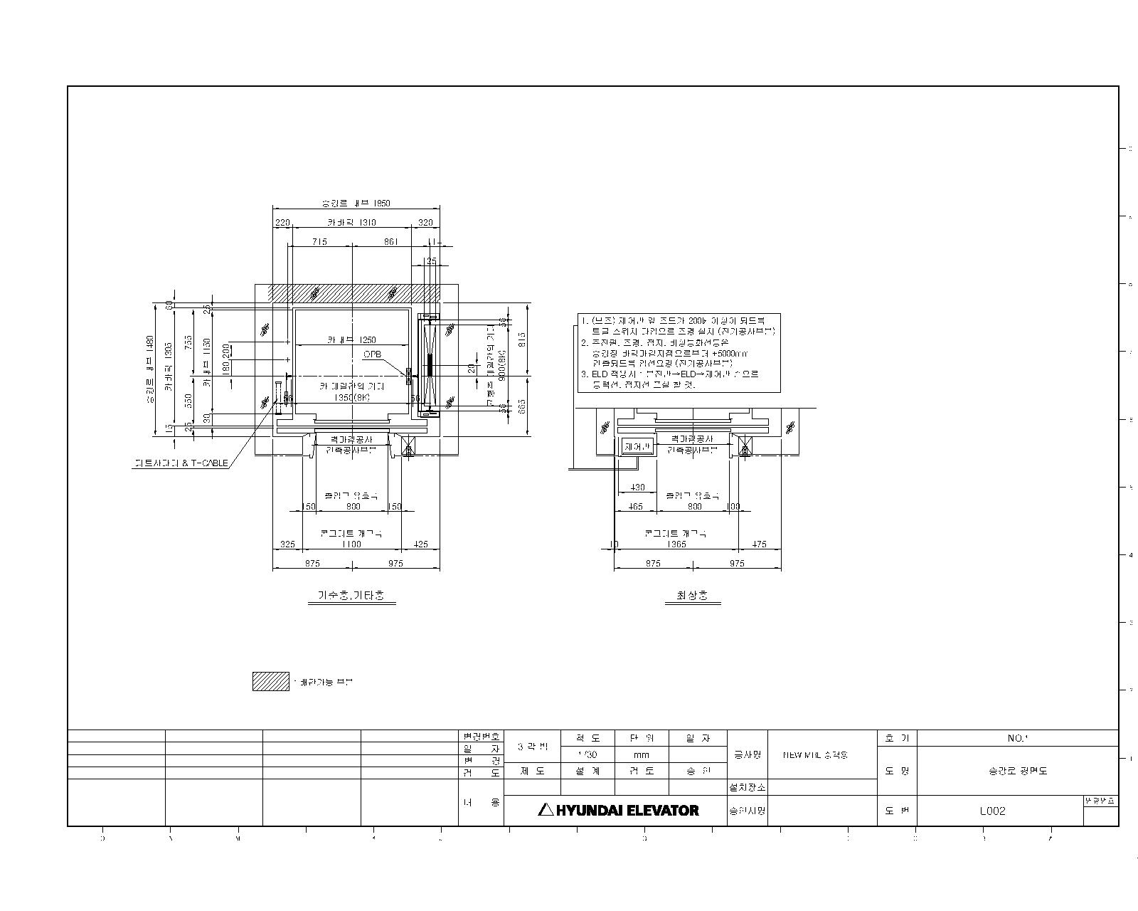
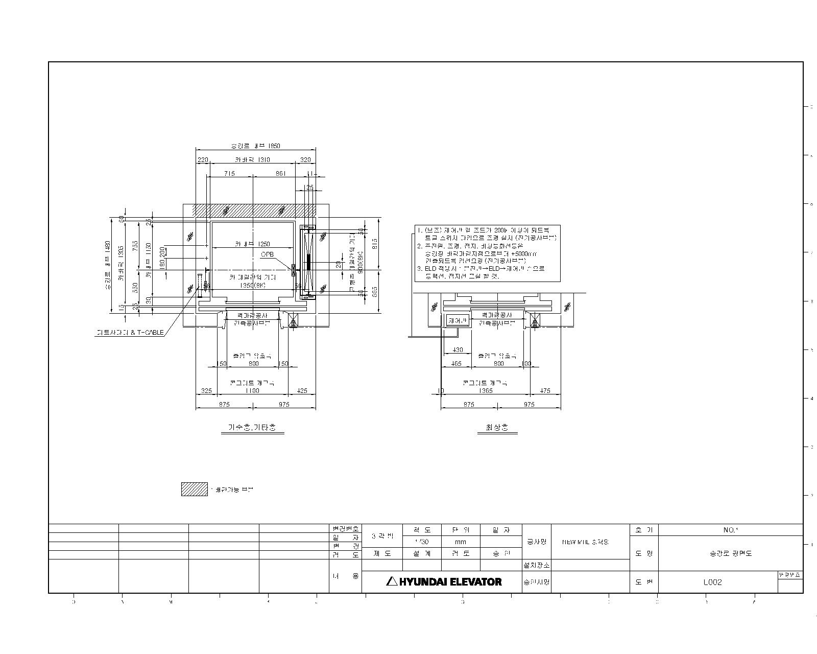
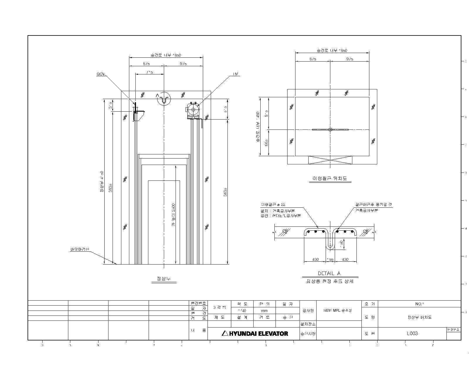
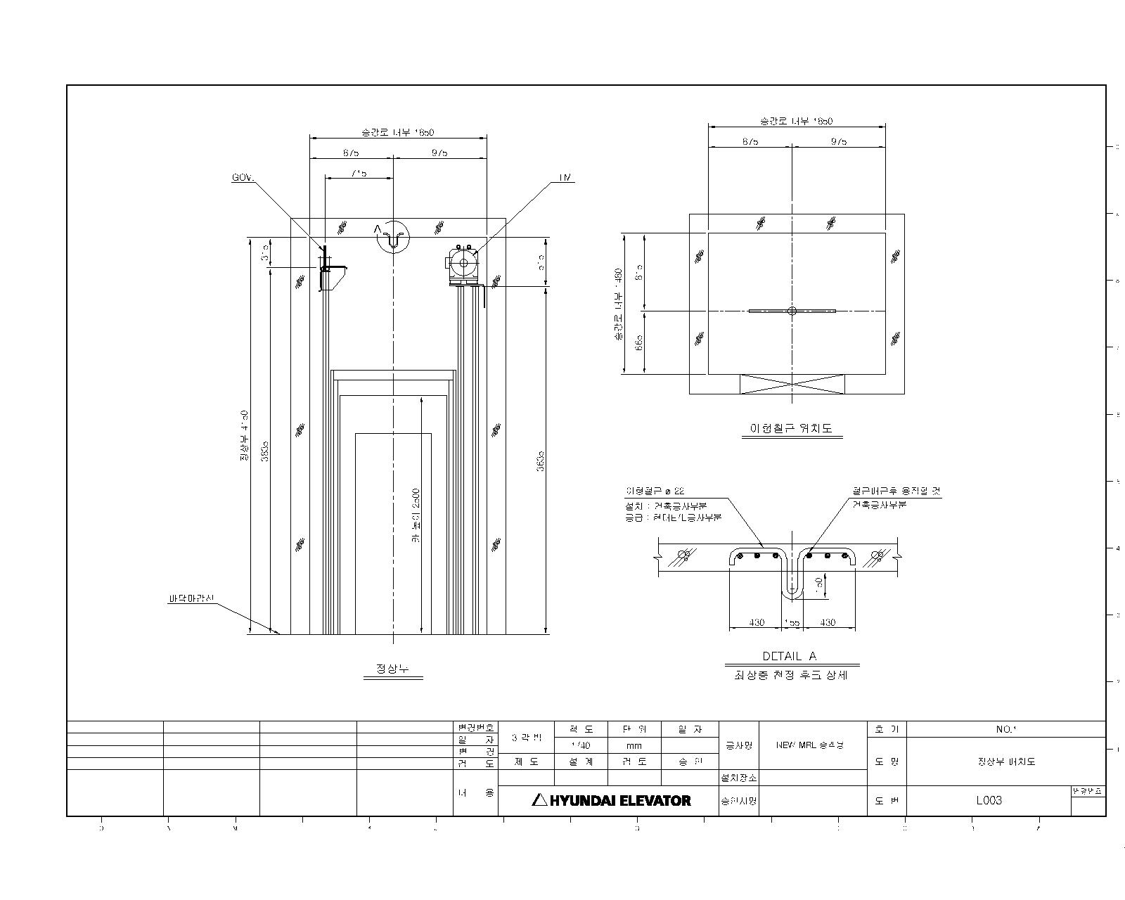
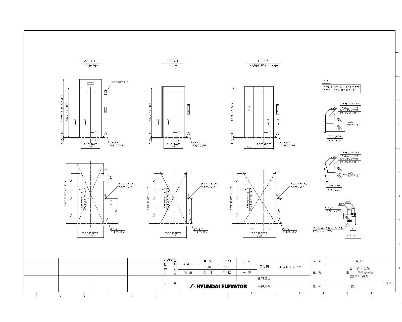
2. 승강로 내부 최소 치수
a) 제어반 내부일 때 = 1,850 x 1,680
b) 제어반 외부일 때 = 1,850 x 1,480
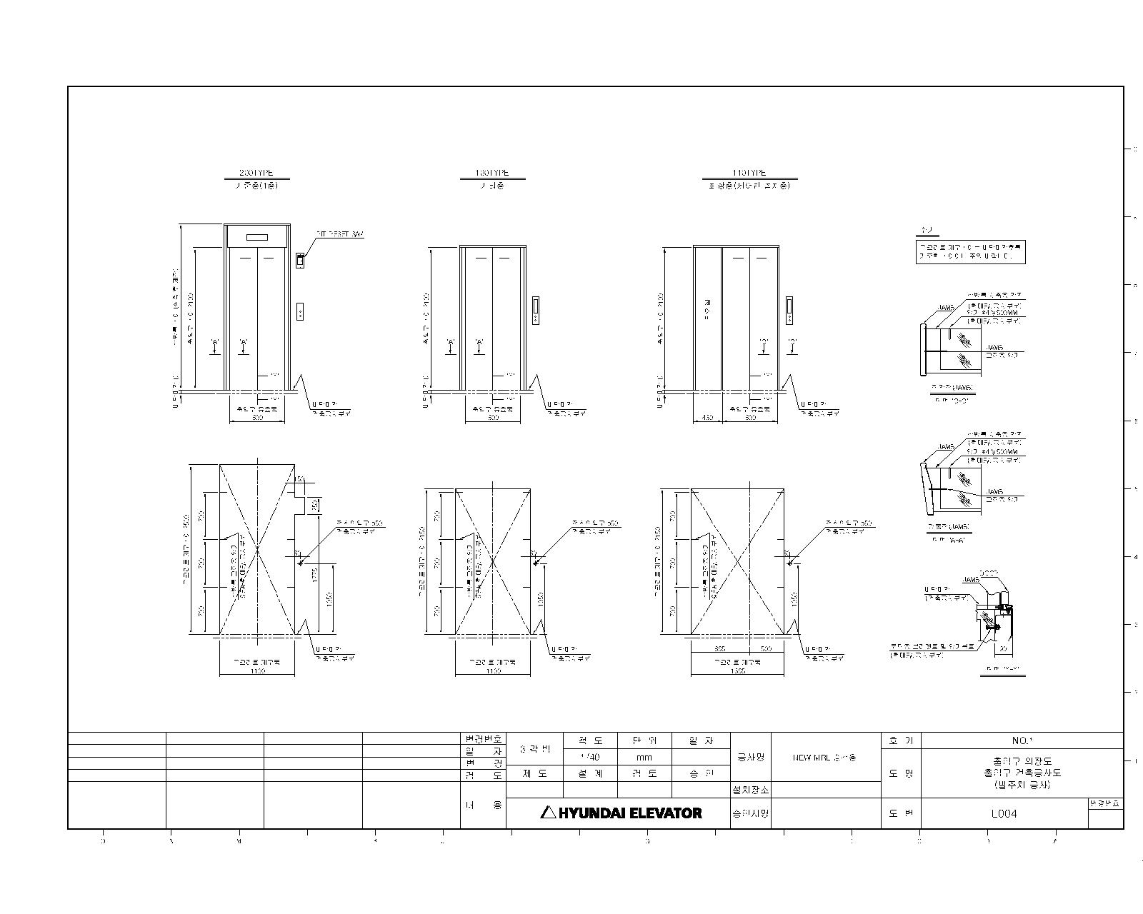
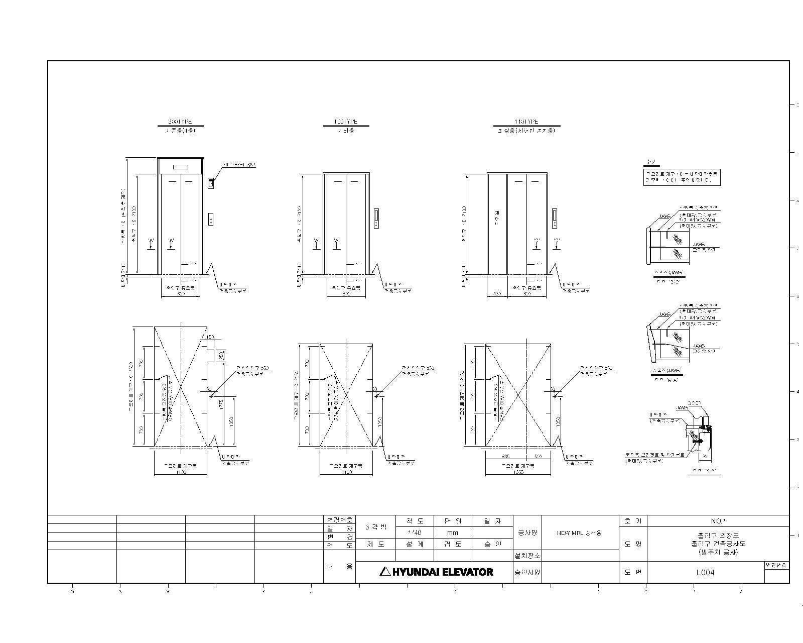
3. 승강기 문
a) 최소 폭 = 800 x 2,100 (H=바닥 마감 기준)
b) 상방틀 최소 폭 = 1,100 x 2,150 (H=바닥 마감 기준)
c) 제아반 포함 최소 폭 = 1,130 x 2,100 (H=바닥 마감 기준)
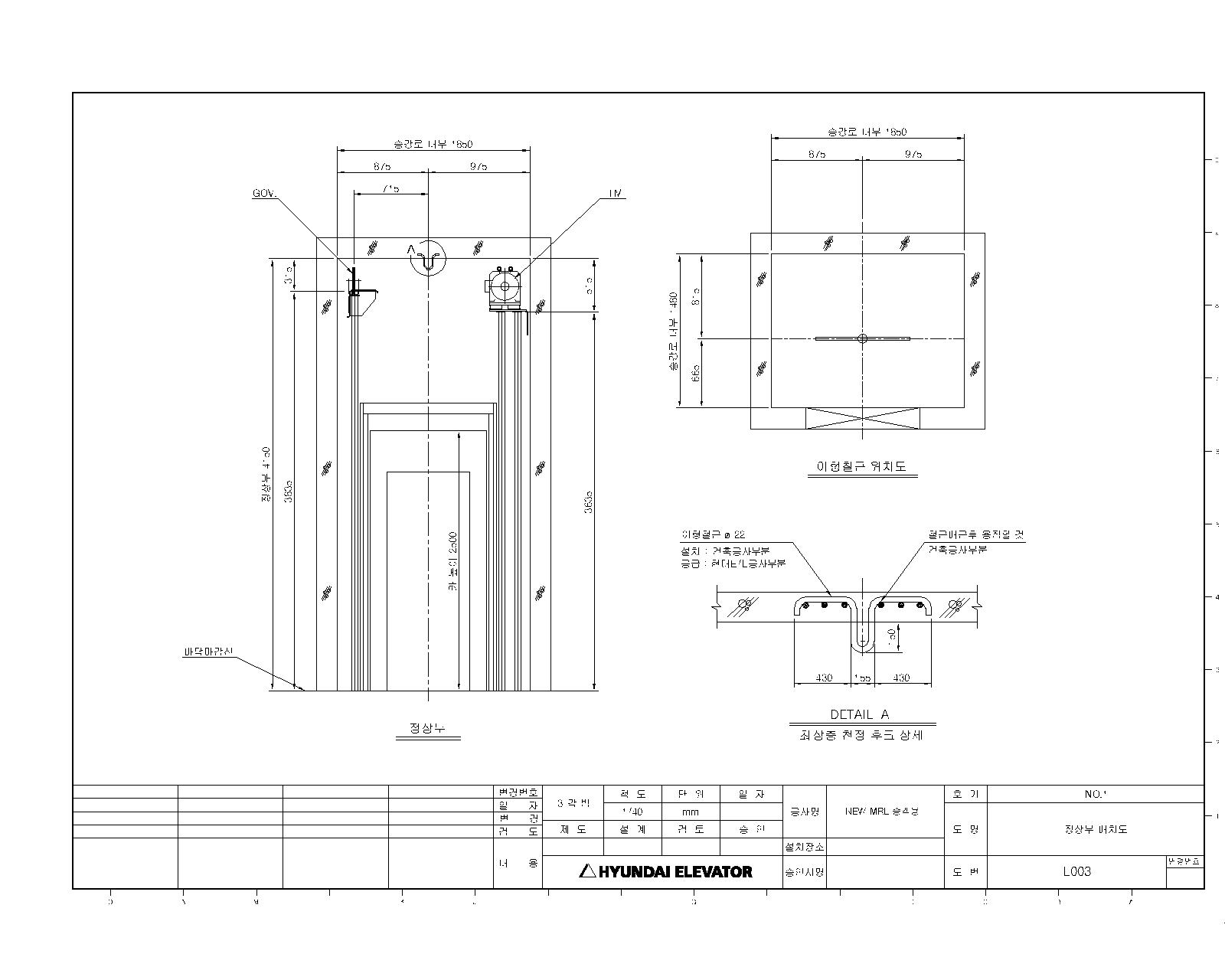
4. 승강기 오버헤드 내부 치수 (속도에 따라 다름)
= 3,800 ~ 4,400 (H=최상층 바닥 마감 기준)
5. 승강기 PIT 내부 치수 (속도에 따라 다름)
= 1,100 ~ 1,350 (H=최하층 바닥 마감에서 PIT 바닥 마감 까지)
티센크루프 엘리베이터 콘크리트 구조 2인승 치수 바로가기
현대 엘리베이터 콘크리트 구조 12인승(장애인용)_개정후(19.10.22) 치수 바로가기
현대 엘리베이터 콘크리트 구조 13인승(장애인용)_개정후(19.10.22) 치수 바로가기
현대 엘리베이터 콘크리트 구조 15인승(장애인용)_개정후(19.10.22) 치수 바로가기
현대 엘리베이터 장애인용 ELEV. 비교표_개정후(19.10.22) 바로가기





| 태양광 패널 사이즈 및 스팩 (0) | 2019.09.19 |
|---|---|
| 석면조사 업체 리스트 (0) | 2019.09.14 |
| 현대 엘리베이터 콘크리트 구조 12인승(장애인용) 치수_개정후(19.10.22) (1) | 2019.09.14 |
| 단독주택용 기름보일러 유류저장탱크 크키 (0) | 2019.08.28 |
| 현대 엘리베이터 콘크리트 구조 13인승(장애인용) 치수_개정후(19.10.22) (0) | 2019.08.23 |